Terrain constructible à vendre à Savelborn

  • Référence : 5857
  • Type : Terrain constructible
  • Salle de bain : null
  • Superficie terrain : +/- 10,75 ares
  • Prix de vente : 880 000 €
  • Disponibilité : Immédiate
Contact
Classe énergétique
NC
Classe d'isolation thermique NC

Description

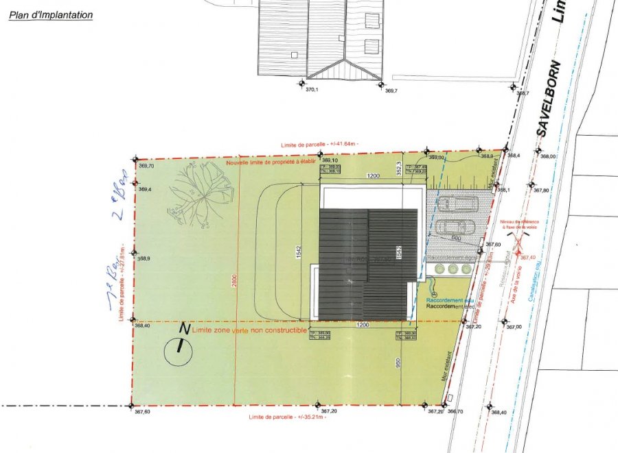
Ce terrain de 10 ares 75 centiares est situé à Savelborn. Il est possible de construire une maison unifamiliale ou jumelée.

Largeur façade rue : ± 28 m
Profondeur du terrain façade sud : ± 35 m
Profondeur du terrain façade nord : ± 42 m

La maison peut avoir une largeur de 6 m minimum et une profondeur maximum de 15 mètres y compris terrasse et véranda.

Vous pouvez construire moins en profondeur à condition de respecter une profondeur de 3 m sur la façade côté rue.

Orientée Sud-Ouest, le terrain est situé à Savelborn.

Ce terrain se trouve en zone mixte rurale et est donc destiné aux maisons unifamiliales et exploitations agricoles.

Savelborn est un village qui se trouve en direction du nord de la capitale du pays, Luxembourg-Ville, niché dans une zone plutôt verdoyante, entourée de forêts et de nature. Cela en fait un lieu populaire pour les randonnées et les activités de plein air.

Le village fait partie de la commune de la Vallée de l'Ernz, qui inclut plusieurs autres localités.
Le village est desservi par les bus, qui assurent également une liaison avec la capitale et les communes voisines.

Pour plus d'informations, veuillez contacter s.v.p. Maurits van Rijckevorsel au numéro de téléphone +352 621 198 891 ou par e-mail maurits@vanmaurits.lu

Caractéristiques

Extérieur

Terrain10.75 ares

Contactez-nous

+352621587030

Vous
 
Champs obligatoire
 
 
 
En envoyant ce formulaire, j’accepte que mes informations soient enregistrées puis utilisées par notre agence afin de répondre à ma demande. Consultez notre pour connaître vos droits.
 

Localisation

Savelborn