Maison jumelée à vendre 4 chambres à Kehlen

  • Référence : 5747
  • Type : Maison jumelée
  • Chambres : 4
  • Salle de bain : 1
  • Salle de douche : 1
  • Surface habitable : +/-155 m2
  • Superficie terrain : +/- 2,52 ares
  • Prix de vente : 1 550 000 €
  • Année de construction : 2025
  • Disponibilité : Immédiate
Contact
Classe énergétique
IP
Classe d'isolation thermique IP

Description

Située à Kehlen, cette maison neuve avec fin de construction prévue en 2026, offre une surface totale de ± 202 m² dont ± 155 m² habitables sur un terrain de 2.52 ares. Pensée pour un confort de vie moderne, elle bénéficie d'un agencement fonctionnel et lumineux réparti sur plusieurs niveaux.

La maison se présente comme suit :

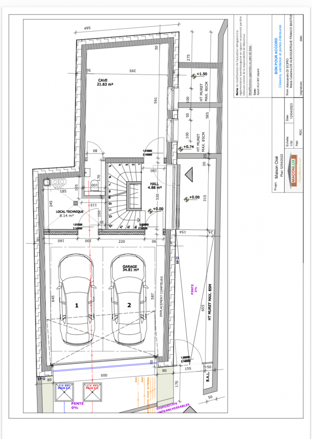
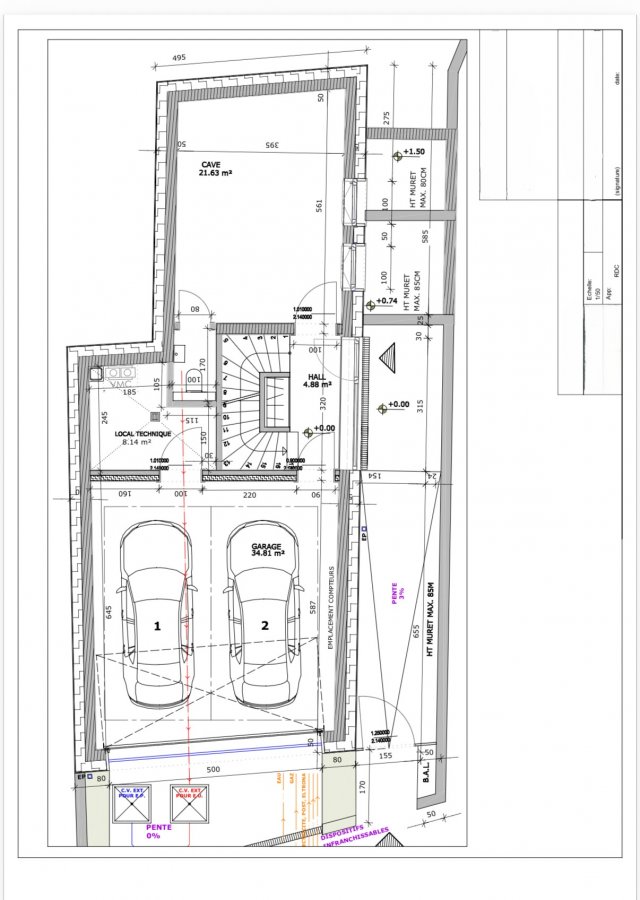
Au rez-de-chaussée, le hall d'entrée de ± 5 m² dessert un garage de ± 35 m², un local technique de ± 8 m² ainsi qu'une salle multifonctionnelle de ± 22 m² pouvant servir de bureau, salle de loisirs ou chambre d'appoint. Ce niveau comprend également un hall de ± 5 m² et un wc séparé de ± 2 m².

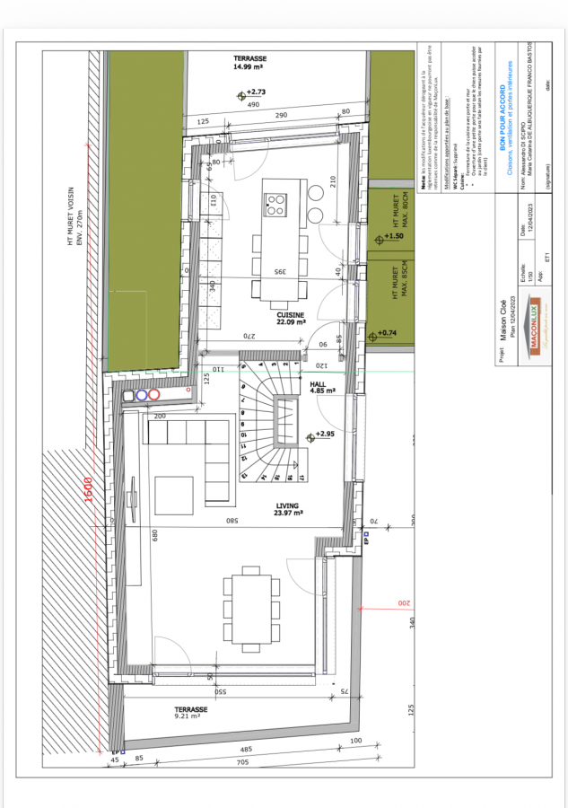
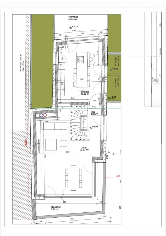
Le premier étage accueille l'espace de vie principal avec une cuisine de ± 22 m² entièrement équipée et aménagée, ouverte sur un séjour de ± 24 m² et un salon de ± 8 m². Cet ensemble lumineux donne accès à deux terrasses de ± 9 et 15 m², idéales pour profiter de l'extérieur.

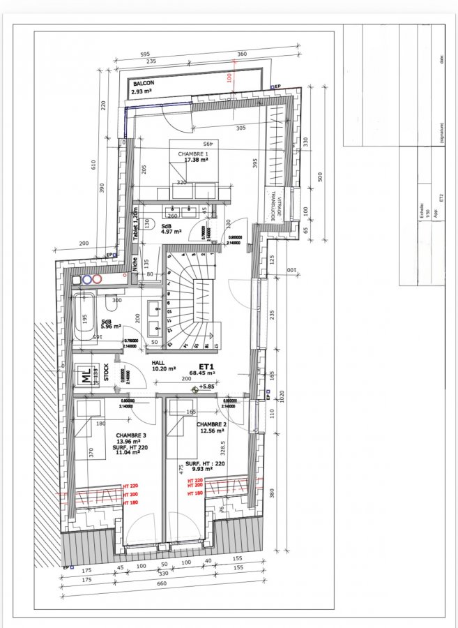
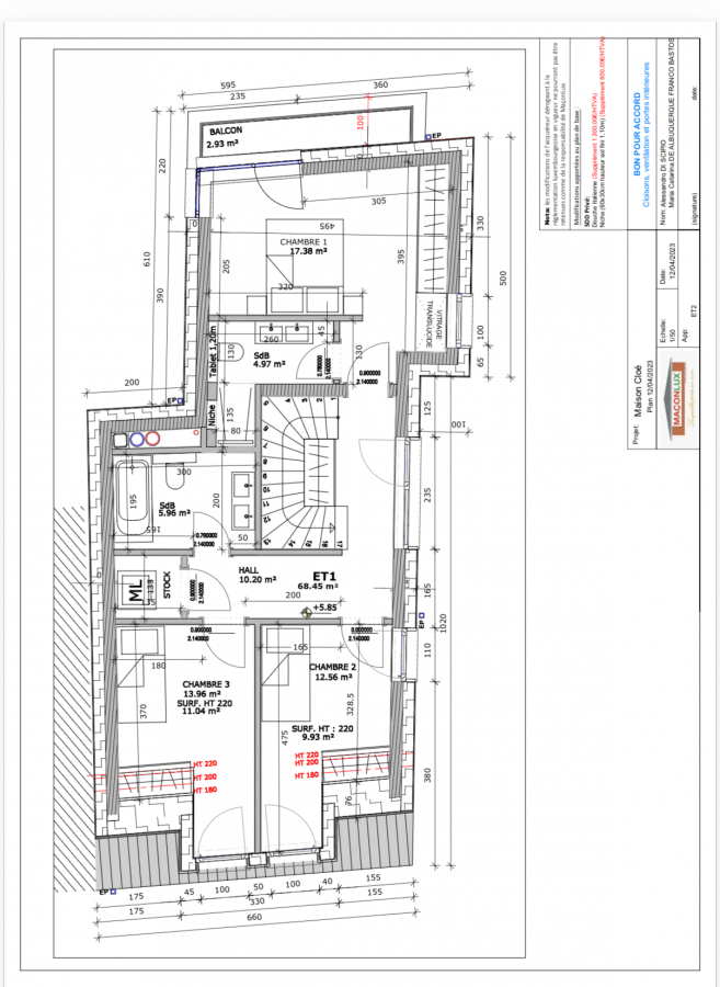
Le deuxième étage est dédié à la partie nuit et comprend un hall de ± 10 m² desservant trois chambres de ± 13, 14 et 17 m², un débarras de ± 2 m² ainsi qu'un balcon de ± 3 m². Deux salles d'eau complètent cet étage : une salle de bain de ± 5 m² (avec double lavabo, baignoire et wc) et une salle de bain de ± 6 m² (avec double lavabo, douche et wc).

Détails complémentaires :
? Maison neuve ? état : neuf
? Sols : carrelage
? Revêtements muraux : peinture
? Triple vitrage
? Chauffage au gaz
? Ventilation
? Spots encastrés

Cuisine équipée et aménagée :
Ilôt central ? Meubles de cuisine ? Plan de travail ? Four ? Four à micro-ondes ? Frigo ? Congélateur ? Hotte aspirante

Services à proximité :
Bus ? Club sportif ? Connexions autoroutières ? Parc de jeux ? Pharmacie ? Pistes de randonnées ? Restaurants

Agent responsable : Jimmy de Brabant
Tél. : +352 661 167 494
E-mail : jimmy@vanmaurits.lu

Caractéristiques

Intérieur

CuisineOui
Cuisine ouverteOui

Sanitaires

Salle de bain1
Salle de douche1
Toilette séparée1

Extérieur

Terrain2.52 ares
Terrasse24 m²
Balcon3 m²
Jardin150 m²

Contactez-nous

+352621587030

Vous
 
Champs obligatoire
 
 
 
En envoyant ce formulaire, j’accepte que mes informations soient enregistrées puis utilisées par notre agence afin de répondre à ma demande. Consultez notre pour connaître vos droits.
 

Localisation

31 Rue de Kopstal, L-8284, Kehlen