Entrepôt à vendre à Roedt

  • Référence : 5930
  • Type : Entrepôt
  • Salle de bain : null
  • Salles de douche : 4
  • Surface habitable : +/-2 124 m2
  • Prix de vente : 7 500 000 €
  • Année de construction : 2006
  • Disponibilité : Immédiate
Contact
Classe énergétique
IP
Classe d'isolation thermique IP

Description

Espace artisanal - Entrepôts et bureaux avec emplacements de parking à vendre à Roedt (Commune de Waldbredimus)

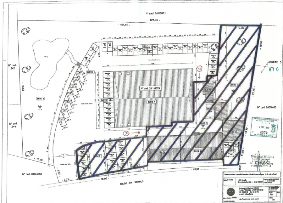
Situé dans un environnement calme et villageois à Roedt, dans la commune de Waldbredimus, cet ensemble construit en 2006 développe une surface totale d'environ 1900 m² au sein d'un site sécurisé et clôturé de 83,83 ares.

Les 4 halls offre une hauteur sous plafond de 3,64 m, permettant une utilisation polyvalente pour des activités artisanales, logistiques ou de stockage.

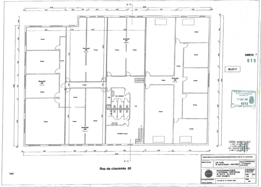
Les entrepôts sont cadastrés et ont une surface respective de ± 212, 227, 200 et 300 m². Les surfaces des bureaux varient elles entre 20 et 100m², tous modulables (cloisons amovibles).

Les portes sectionnelles permettent l'accès à des grandes camionnettes, facilitant les opérations de chargement et déchargement.

Le bien comprend également :
- Un espace sanitaire commun pour les bureaux et sanitaires privés dans les entrepôts.
- Une cuisine équipée centralisée pour une utilisation commune.
- 44 emplacements de parking extérieurs,

Le bien est cadastré, la plupart des bureaux sont actuellement loués ; les modalités de libération seront communiquées ultérieurement.

Le bien est exposé sud-ouest, le site bénéficie d'un agréable espace extérieur (jardin avec étang).

La copropriété met à disposition plusieurs espaces partagés :
- un espace café et rendez-vous
- un espace avec distributeurs automatiques (vending machines)
- un jardin commun avec étang

Caractéristiques techniques
- Chauffage individuel
- Construction : 2006
- Bâtiment 4 façades
- Disponibilité : à convenir

Situation
Le site clôturé et sécurisé bénéficie d'une situation stratégique à l'est du Luxembourg, avec un accès rapide aux axes routiers reliant :
Sandweiler
- Moutfort
- Remich
- Mondorf-les-Bains
et aux principales connexions autoroutières.

Ce bien constitue une opportunité intéressante pour investisseurs ou entreprises recherchant des surfaces modulables avec parkings dans un environnement accessible et fonctionnel.

Pour plus d'informations :
Maurits van Rijckevorsel
+352 621 198 891
maurits@vanmaurits.lu

Caractéristiques

Sanitaires

Salles de douche4
Toilettes séparées2

Chauffage / climatisation

Chauffage au gazOui
ClimatisationOui

Aménagement spécifique

VestiairesOui
BureauOui

Extérieur

Nb de parking externe44

Contactez-nous

+352621587030

Vous
 
Champs obligatoire
 
 
 
En envoyant ce formulaire, j’accepte que mes informations soient enregistrées puis utilisées par notre agence afin de répondre à ma demande. Consultez notre pour connaître vos droits.
 

Localisation

54 Rue de Remich, L-5442, Roedt