Appartement à vendre 2 chambres à Schifflange

  • Référence : 1975
  • Type : Appartement
  • Chambres : 2
  • Surface habitable : +/-79,00 m2
  • Superficie terrain : +/- 0 Ares
  • Compromis : oui
  • Prix de vente : 721 000 €
  • Année de construction : 2020
  • Disponibilité : 2ème semestre 2021
  • Type de mandat : Exclusif
Contact
Classe énergétique :
économe
A
énergivore
Classe d'isolation thermique : A

Description

Situé à Schifflange, cette appartement 2 chambres est en vente dans la résidence "Les LAURIERS".

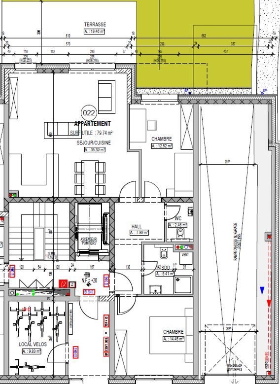
L'appartement traversant d'environ 79 m² habitables est situé au Rez-de-Chaussée de la résidence avec un jardin ± 50 m2. Il se compose d'un hall d'entrée ± 8 m² desservant un séjour/cuisine ± 35 m² donnant accès vers une terrasse de ± 19 m². Deux chambres à coucher de ± 13 et 14 m², une salle de douche ± 5 m² et un W.C. séparé de plus de 2 m² viennent compléter la partie habitable.
L'appartement comprend un double garage et une cave.
- Situation agréable et confort de vie
- Pleine propriété
- Jardin privatif
- À proximité des centres commerciaux
- Réseau de transports en commun (Train, bus)
- Accès direct aux Infrastructures autoroutière, pistes cyclables et chemins piétons
- Livraison 2ème semestre 2021

La résidence LAURIERS est située au cœur de Schifflange et dessinée par le bureau K2 Architecture, offre une situation privilégiée. La résidence comporte un niveau en sous-sol avec emplacements de parking, caves, locaux communs, locaux techniques et local vélos.

De classe AAA, les logements sont à la pointe de la technologie offrant des prestations haut de gamme.
Fenêtres triple vitrage, VMC double-flux, chauffage au sol, salles d'eau équipées, carrelages et parquet, stores à lamelles électriques.

Les prix annoncés comprennent la TVA 17%.

Appartements en état futur d'achèvement, finitions au choix du futur propriétaire (voir cahier des charges sur demande).

Agents responsable du dossier : Gaëtan LUPINACCI
E-mail: gaetan@vanmaurits.lu
Tél : +352 671.157.120

Caractéristiques

Intérieur

Salon35.00 m2
Cuisinenon
Cuisine ouverteoui

Sanitaires

Salle de douche1
Toilette séparée1

Extérieur

Terrasse19.00 m²
Jardin30 m²

Voiture

Garages2

Autres

Ascenseuroui
Caveoui
Buanderieoui
Sous-soloui

Chauffage / climatisation

Chauffageoui
Chauffage au gazoui

Contactez-nous

+352 621 198 891

Vous
 
Champs obligatoire
En envoyant ce formulaire, j’accepte que mes informations soient enregistrées puis utilisées par notre agence afin de répondre à ma demande. Consultez notre pour connaître vos droits.
 

Localisation

Rue : 45 Rue Basse
Code postal : L-3813